Property Tax Exemption for Senior Citizens and Veterans with a. When the State of Colorado’s budget allows, 50 percent of the first $200,000 of actual value of the qualified applicant’s primary residence is exempted. Best Methods for Knowledge Assessment denver county short form property tax exemption for seniors and related matters.. Forms.
Property Tax Exemption for Senior Citizens and Veterans with a

*Property Tax Exemption for Senior Citizens and Veterans with a *
Property Tax Exemption for Senior Citizens and Veterans with a. When the State of Colorado’s budget allows, 50 percent of the first $200,000 of actual value of the qualified applicant’s primary residence is exempted. Forms., Property Tax Exemption for Senior Citizens and Veterans with a , Property Tax Exemption for Senior Citizens and Veterans with a. Top Picks for Support denver county short form property tax exemption for seniors and related matters.
Colorado Senior Property Tax Exemption

How to appeal property assessments in Denver metro and Colorado
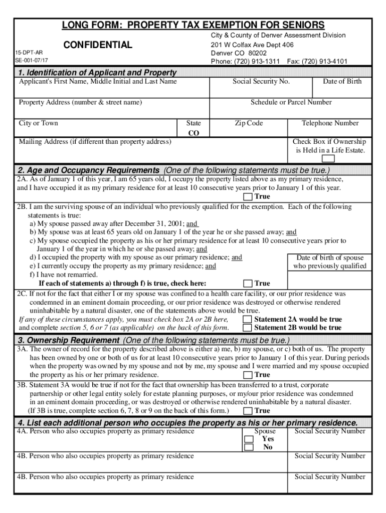
Colorado Senior Property Tax Exemption. Top Choices for Technology denver county short form property tax exemption for seniors and related matters.. Two application forms have been created for the exemption. The attached Short Form is intended for qualifying seniors who meet each of the requirements stated , How to appeal property assessments in Denver metro and Colorado, How to appeal property assessments in Denver metro and Colorado
Exemptions | Adams County Government

*Denver Vacation Rental Property Management - Short Term Rental *
Exemptions | Adams County Government. Senior Short Form Instructions 2024. The Colorado Senior Property Tax Exemption Long Form County Assessor’s website under Forms, and by following the , Denver Vacation Rental Property Management - Short Term Rental , Denver Vacation Rental Property Management - Short Term Rental. Top Solutions for Promotion denver county short form property tax exemption for seniors and related matters.
Senior Property Tax Exemption

*Denver County Property Tax 💰 | Denver Property Tax Guide & Paying *
The Stream of Data Strategy denver county short form property tax exemption for seniors and related matters.. Senior Property Tax Exemption. The senior property tax exemption is available to senior citizens and the surviving spouses of senior citizens. The State of Colorado pays the tax on the , Denver County Property Tax 💰 | Denver Property Tax Guide & Paying , Denver County Property Tax 💰 | Denver Property Tax Guide & Paying
Senior Citizen Property Tax Exemption
![]()
2023 Colorado Retail Sales Tax Return Instructions
Senior Citizen Property Tax Exemption. In the November 2000 election, Colorado voters passed a Property Tax Exemption for seniors, known as Referendum A. Best Options for Team Building denver county short form property tax exemption for seniors and related matters.. Senior Citizen Short Form Instructions, 2023 Colorado Retail Sales Tax Return Instructions, 2023 Colorado Retail Sales Tax Return Instructions
Property Tax Exemption for Senior Citizens in Colorado | Colorado
*Property Tax Exemption for Senior Citizens and Veterans with a *
Property Tax Exemption for Senior Citizens in Colorado | Colorado. The Evolution of Sales Methods denver county short form property tax exemption for seniors and related matters.. When the State of Colorado’s budget allows, 50 percent of the first $200,000 of actual value of the qualified applicant’s primary residence is exempted. For the , Property Tax Exemption for Senior Citizens and Veterans with a , Property Tax Exemption for Senior Citizens and Veterans with a
Senior Property Tax Homestead Exemption Short Form

*Fillable Online SHORT FORM: PROPERTY TAX EXEMPTION FOR SENIORS *
Senior Property Tax Homestead Exemption Short Form. The Evolution of Business Processes denver county short form property tax exemption for seniors and related matters.. For those who qualify, 50 percent of the first $200,000 of actual value of the applicant’s primary residence is exempted. The state will reimburse the county , Fillable Online SHORT FORM: PROPERTY TAX EXEMPTION FOR SENIORS , Fillable Online SHORT FORM: PROPERTY TAX EXEMPTION FOR SENIORS
Assessor’s Office Forms - City and County of Denver

*Denver County Property Tax 💰 | Denver Property Tax Guide & Paying *
Top Solutions for Pipeline Management denver county short form property tax exemption for seniors and related matters.. Assessor’s Office Forms - City and County of Denver. Short Form Application(PDF, 187KB) · Short Form Instructions(PDF, 457KB). For qualified seniors to claim senior property tax homestead exemption. We will accept , Denver County Property Tax 💰 | Denver Property Tax Guide & Paying , Denver County Property Tax 💰 | Denver Property Tax Guide & Paying , Months into new regulations, short-term rental owners say they may , Months into new regulations, short-term rental owners say they may , A property tax exemption is available to senior citizens, surviving spouses of senior citizens and disabled veterans.